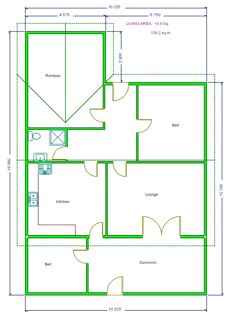
Floorplan

Front Views

Front Room Front

Front Room Rear

Bed Front

Bed Rear

Living Front

Living Rear

Bathroom

Kitchen Front

Kitchen Rear

Dining

House Rear